Wick Road, Brislington, Bristol Wick Road, Brislington, Bristol

Wick Road, Brislington, Bristol

1 bedroom Apartment Sold STC

£250,000

  • 1 bedroom
  • 2 bathroom
  • 2 reception

Key Features

  • Energy Rating - TBC
  • One Double Bedroom Ground Floor Flat
  • Self Contained Annexe
  • Two Separate Reception Rooms
  • Fitted Kitchen & Separate Utility Room
  • Large West Facing Rear Garden

Description

Occupying the ground floor of an attractive Victorian terraced house, this is a home that offers far more than you might expect from a one bedroom flat. Generous in scale and wonderfully versatile, it has a real sense of space throughout, along with the added bonus of a private garden and a separate annex.

Step inside and you are immediately struck by the proportions. The main reception room is bright and welcoming, with high ceilings and a lovely sense of character, while a second reception room provides valuable flexibility, ideal as a dining room or home office.

The kitchen is well fitted and thoughtfully arranged, complemented by a separate utility room, a practical addition that helps keep the main living spaces uncluttered. The bathroom has been finished in a modern, contemporary style, creating a clean and comfortable space to unwind. The double bedroom is a great size, and well proportioned, offering a relaxing retreat at the end of the day.

To the rear, the property really comes into its own. A west facing garden, laid mainly to lawn, provides a wonderful outdoor space that enjoys plenty of afternoon and evening sun. At the far end, a self contained annex adds an extra layer of versatility, whether you are looking for a home office, studio, or simply a separate space to escape to.

The location is equally appealing. Just a short walk from Sandy Park Road, you will find a thriving high street known for its independent cafes, bars, shops and a well loved local pub. There is a real sense of community here, combined with excellent connectivity into the city. For those who enjoy the outdoors, nearby green spaces including Arnos Court Park, Nightingale Valley and Victory Park offer the perfect balance to city living.

All in all, this is a unique and characterful home that combines space, flexibility and location in a way that is rarely found in a one bedroom property.

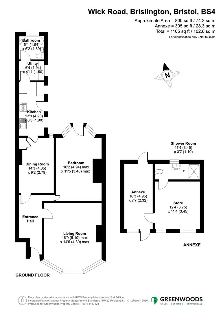
Living Room (5.10 max x 4.39)

Dining Room (4.35 x 2.79)

Kitchen (4.20 x 1.90)

Utility Room (1.94 x 1.50)

Bedroom (4.94 max x 3.48 max)

Bathroom (1.94 x 1.89)

Annexe (4.95 x 2.32)

Annexe - Store (3.75 x 3.45)

Annexe - Shower Room (3.45 x 1.10)

Tenure Status - Leasehold

Lease length - TBC

Council Tax - Band A


Location


Floorplan

Floorplan

EPC

EPC for Wick Road, Brislington, Bristol

Address:

148a Wells Road,
Knowle Bristol BS4 2AG

Similar Properties

New Walls, Totterdown, Bristol
For Sale

New Walls, Totterdown, Bristol

1 Bed Flat For Sale
£195,000
Hungerford Gardens, Brislington, Bristol
For Sale

Hungerford Gardens, Brislington, Bristol

3 Bed Terraced House For Sale
£325,000
Hither Bath Bridge, Brislington, Bristol
For Sale

Hither Bath Bridge, Brislington, Bristol

4 Bed Detached house For Sale
£550,000