Woollard Lane, Publow, Bristol Woollard Lane, Publow, Bristol

Woollard Lane, Publow, Bristol

3 bedroom Detached bungalow for sale

£770,000

  • 3 bedroom
  • 1 bathroom
  • 2 reception

Key Features

  • Detached Bungalow On 0.82 Acres With Development Potential
  • For Sale By Modern Method Of Auction - T & C's Apply
  • Subject To Reserve Price
  • Buyers Fees Apply
  • The Modern Method Of Auction
  • NO ONWARD CHAIN

Description

A Rare Opportunity with Breath-taking Countryside Views

Set on approximately 0.82 acres of beautifully positioned grounds, this three-bedroom detached bungalow on Woollard Lane, Publow, presents a truly rare opportunity - whether for those seeking a peaceful rural retreat or those with an eye for future development potential (subject to the necessary planning consents).

Perfectly placed to enjoy expansive, uninterrupted panoramic views across the surrounding countryside, this home offers an exceptional sense of space, privacy, and possibility.

The existing accommodation comprises a well-proportioned three-bedroom bungalow, with living areas that make the most of the natural light and far-reaching outlook. The gardens extend around the property, offering mature trees, open lawns, and ample room for imaginative landscaping or redevelopment.

Opportunities like this rarely come to market, a property that combines idyllic rural surroundings, easy access to both Bristol and Bath, and extraordinary potential to create something truly special.

Whether you’re looking to modernise, extend, or explore development options, this is a chance to secure a piece of countryside tranquillity in a highly sought-after location.

This property is for sale by the Modern Method of Auction, meaning the buyer and seller are to Complete within 56 days (the "Reservation Period"). Interested parties personal data will be shared with the Auctioneer (iamsold).

A Buyer Information Pack is provided. The buyer will pay £300.00 including VAT for this pack which you must view before bidding.

The buyer signs a Reservation Agreement and makes payment of a non-refundable Reservation Fee of 4.50% of the purchase price including VAT, subject to a minimum of £6,600.00 including VAT. This is paid to reserve the property to the buyer during the Reservation Period and is paid in addition to the purchase price. This is considered within calculations for Stamp Duty Land Tax.
Services may

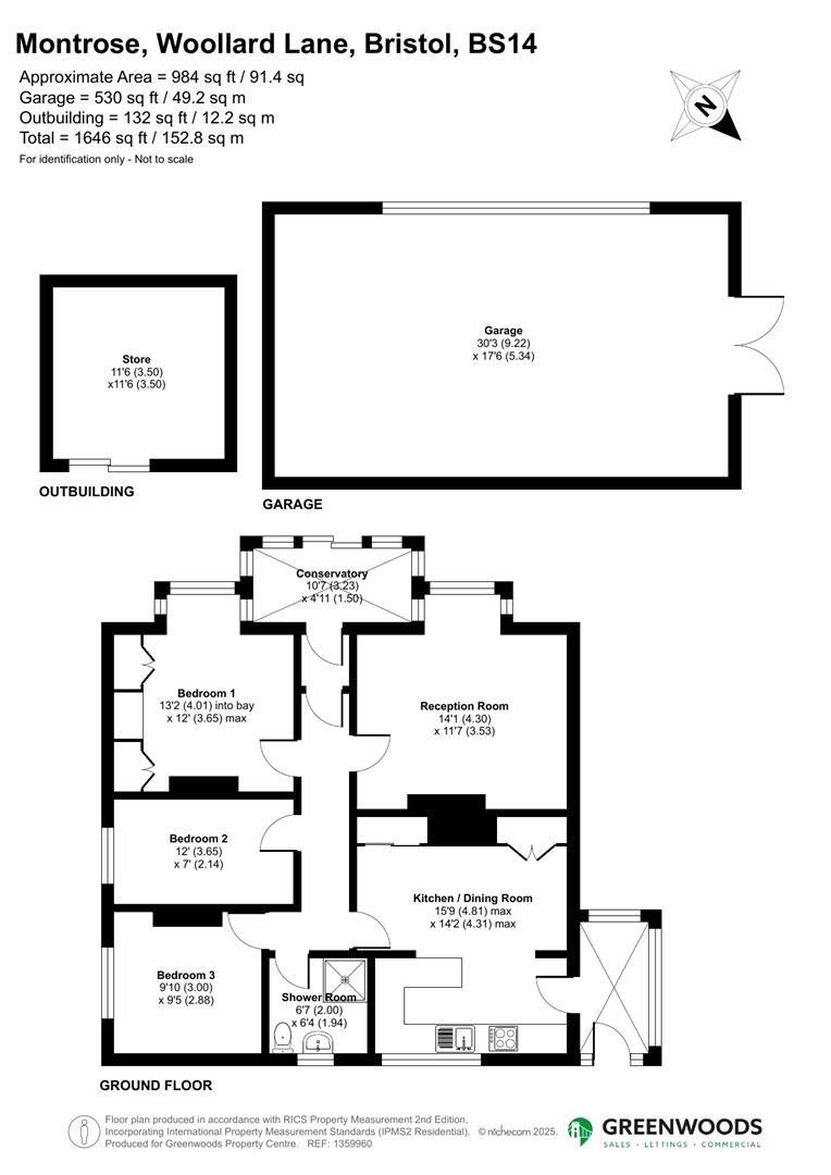
Reception Room (4.3 x 3.53)

Kitchen / Dining Room (4.81 max x 4.31 max)

Bedroom One (4.01 into bay x 3.65 max)

Bedroom Two (3.65 x 2.14)

Bedroom Three (3.0 x 2.88)

Conservatory (3.23 x 1.5)

Garage (9.22 x 5.34)

Outbuilding / Store (3.5 x 3.5)

Tenure Status - Freehold

Council Tax - Band E

PLEASE NOTE:

In accordance with section 21 of the Estate Agents Act 1979, we declare that there is a personal interest in the sale of this property. An employee of Greenwoods Property Centre is related to one of the sellers.


Location


Floorplan

Floorplan

EPC

EPC for Woollard Lane, Publow, Bristol

Address:

148a Wells Road,
Knowle Bristol BS4 2AG

Similar Properties

Pinkhams Twist, Whitchurch
For Sale

Pinkhams Twist, Whitchurch

2 Bed End of terrace house For Sale
£235,000
Pomfrett Gardens, Bristol
For Sale

Pomfrett Gardens, Bristol

3 Bed Terraced House For Sale
£240,000
Dobunni Close, Whitchurch, Bristol
For Sale

Dobunni Close, Whitchurch, Bristol

4 Bed Detached house For Sale
£575,000