Farrant Close, Bristol Farrant Close, Bristol

Farrant Close, Bristol

2 bedroom Semi-detached house for sale

£245,000

  • 2 bedroom
  • 1 bathroom
  • 2 reception

Key Features

  • Substantial South Facing Garden
  • Two Double Bedrooms
  • End of Terrace
  • Large Living Space
  • Shower Room
  • Freehold

Description

This well proportioned house offers plenty inside and out with two generous bedrooms, ample living space and a substantial garden plot.

Upon entering this home you are welcomed into the expansive, living/dining room spanning an impressive 21ft. This space is perfect for hosting friends and family and can be expanded further as a party space by opening the double doors into the conservatory. This room itself is versatile and could be used as a home office or children's play room.
Completing the ground floor is that kitchen profiting ample storage units and worktop space, ideal for meal prep, like the conservatory, the double doors allows whoever is in the kitchen to still be involved in the wider conversation if taking place in the living area.

Upstairs are two well-proportioned bedrooms, both of which would fit double beds. The largest room benefits a walk in wardrobe/dressing room. Finalising the first floor is the recently refurbished shower room.

Externally this home continues to impress with a significant rear and side plot. The ideal area of summer hosting/alfresco dining.

Farrant close is conveniently placed close to Hengrove Leisure Park with plenty of eateries, activity spots and Hengrove Leisure Centre is nearby to cover sporting activities. Additionally just 0.5 miles to the Imperial Retail Park, with further places to grab a coffee a bite to eat or spend a few hours shopping.

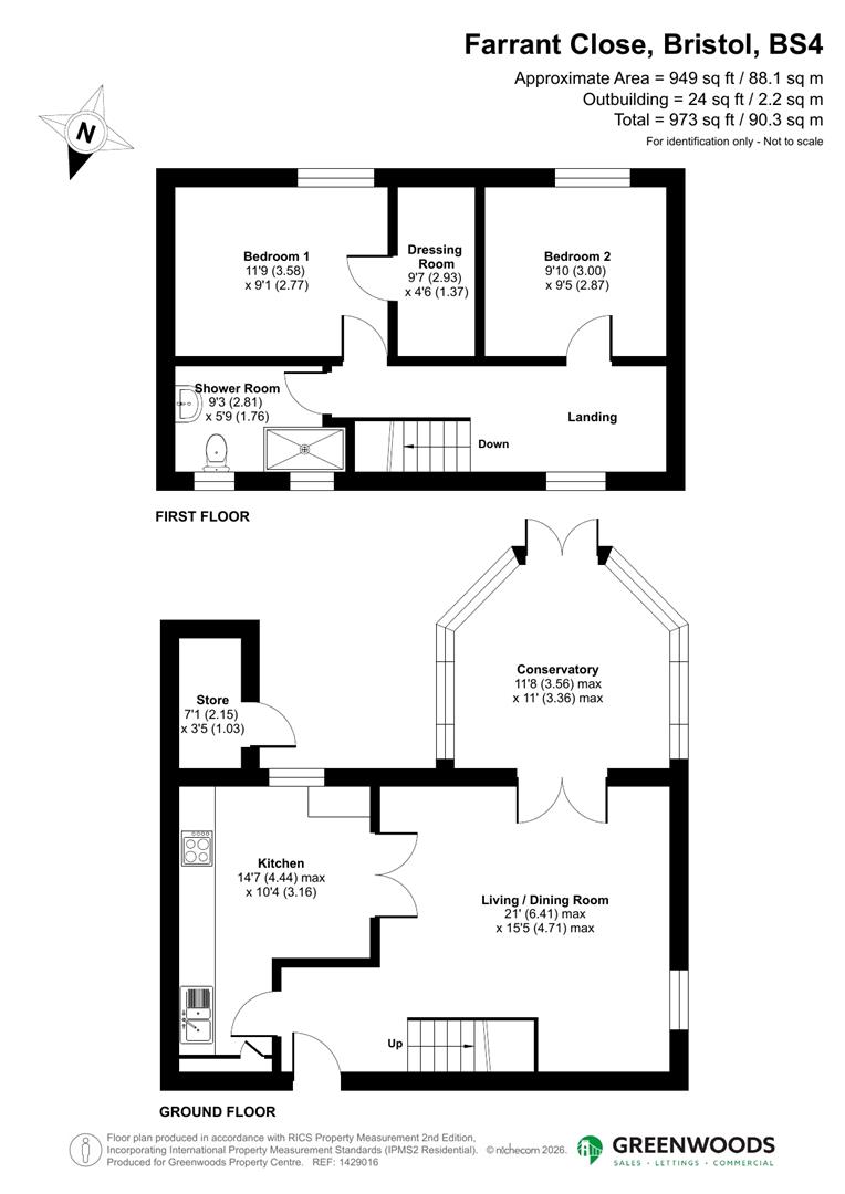
Living Room (6.41 x 4.71)

Kitchen (4.44 x 3.16)

Conservatory (3.56 x 3.36)

Store (2.15 x 1.03)

Bedroom One (3.58 x 2.77)

Bedroom Two (3.00 x 2.87)

Dressing Room (in Bedroom One) (2.93 x 1.37)

Shower Room (2.81 x 1.76)


Location


Floorplan

Floorplan

EPC

EPC for Farrant Close, Bristol

Address:

148a Wells Road,
Knowle Bristol BS4 2AG

Similar Properties

Ryde Road, Knowle, Bristol
For Sale

Ryde Road, Knowle, Bristol

2 Bed Terraced House For Sale
£365,000
Summer Hill, Totterdown, Bristol
For Sale

Summer Hill, Totterdown, Bristol

2 Bed End of terrace house For Sale
£390,000
Upper Street, Totterdown, Bristol
For Sale

Upper Street, Totterdown, Bristol

2 Bed Maisonette For Sale
£325,000