Kylross Avenue, Whitchurch, Bristol Kylross Avenue, Whitchurch, Bristol

Kylross Avenue, Whitchurch, Bristol

2 bedroom End of terrace house for sale

£270,000

  • 2 bedroom
  • 1 bathroom
  • 1 reception

Key Features

  • Energy Rating - C
  • End Of Terrace House
  • Two Double Bedrooms
  • Potential To Easily Create A Third Bedroom
  • No Onward Chain
  • Cul-De-Sac Location
  • Off Street Parking
  • Requires Updating

Description

A Fantastic Opportunity in a Peaceful Whitchurch Cul-de-Sac

Tucked away in a quiet cul-de-sac just off Gilda Crescent, this two-bedroom end of terrace home offers a wonderful opportunity for buyers looking to make their mark. Available with no onward chain, it’s ideal for first-time buyers, or downsizers.

The accommodation offers a practical layout and would now benefit from some updating - reflected in the realistic asking price. The spacious master bedroom is a real highlight, featuring two windows that flood the room with natural light. With its generous proportions, it could easily be divided by a stud wall to create a third bedroom if desired.

The property has already had several key improvements, including UPVC double glazing (installed circa 2015), gas central heating via a combination boiler (installed circa 2015), and a re-wire completed around the same time.

Outside, the rear garden provides a lovely space to enjoy - ideal for relaxing, entertaining, or a touch of gardening. To the front of the property there is a driveway providing off street parking.

Set in a quiet and convenient location close to local shops, schools, and bus routes, this charming home combines solid fundamentals with fantastic scope to improve - a brilliant blank canvas for those ready to make it their own.

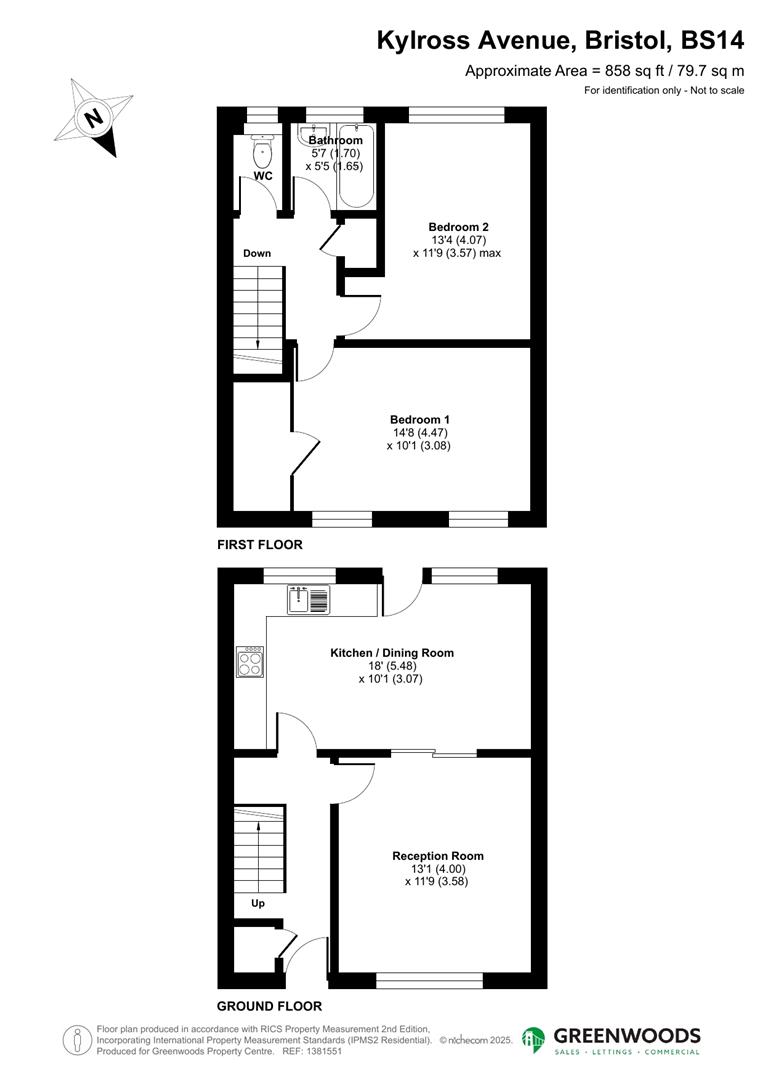
Living Room (4.00 x 3/58)

Kitchen/Diner (5.48 x 3.07)

Bedroom One (4.47 x 3.08)

Bedroom Two (4.07 x 3.57)

Bathroom (1.70 x 1.65)

WC

Tenure - Freehold

Council Tax - Band B


Location


Floorplan

Floorplan

EPC

EPC for Kylross Avenue, Whitchurch, Bristol

Address:

148a Wells Road,
Knowle Bristol BS4 2AG

Similar Properties

Pinkhams Twist, Whitchurch
For Sale

Pinkhams Twist, Whitchurch

2 Bed End of terrace house For Sale
£235,000
Pomfrett Gardens, Bristol
For Sale

Pomfrett Gardens, Bristol

3 Bed Terraced House For Sale
£240,000
Whittock Road, Bristol
For Sale

Whittock Road, Bristol

2 Bed End of terrace house For Sale
£255,000